︎
︎
AUTOCAD DRAFTING
Table of Contents
Prusa Enclosure
Mole-Richardson 10k
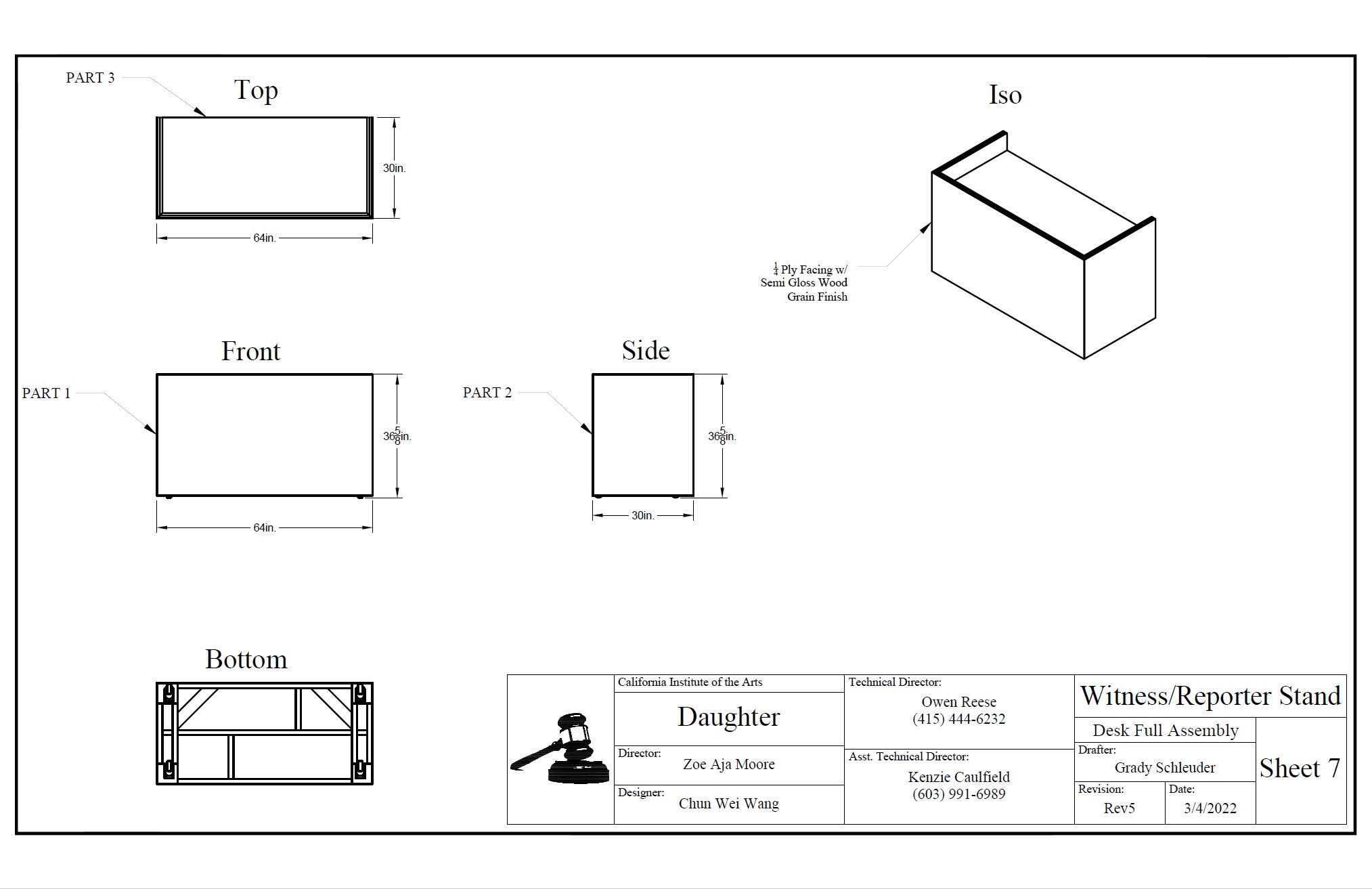
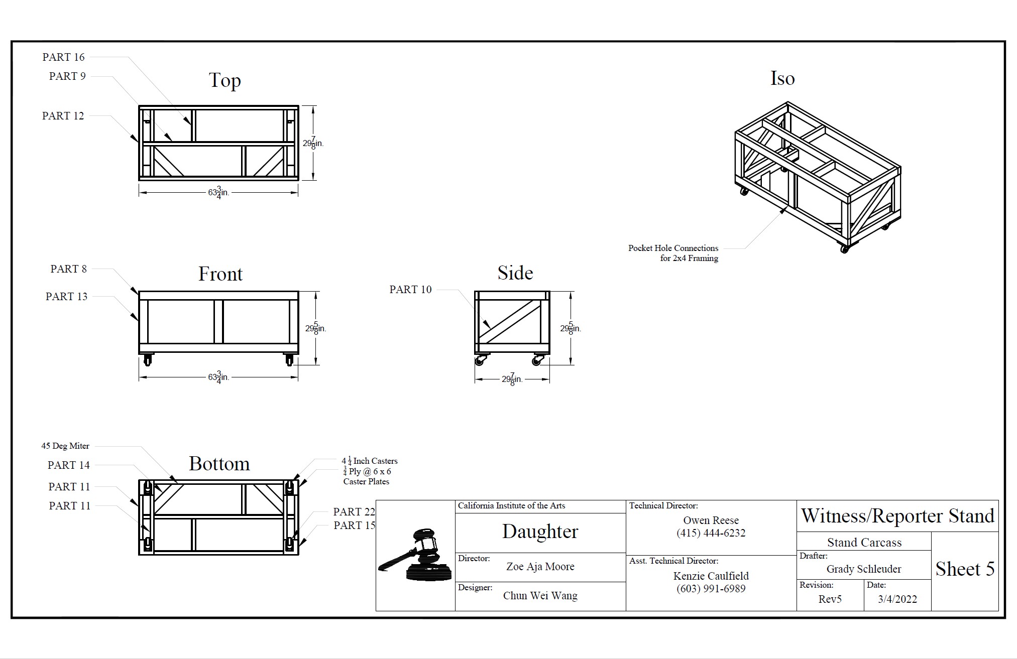
Witness/Reporter Stand
Rolex Roadcase
Rotating iPhone 11
Cracked Dresser
Space X Cabinet