︎


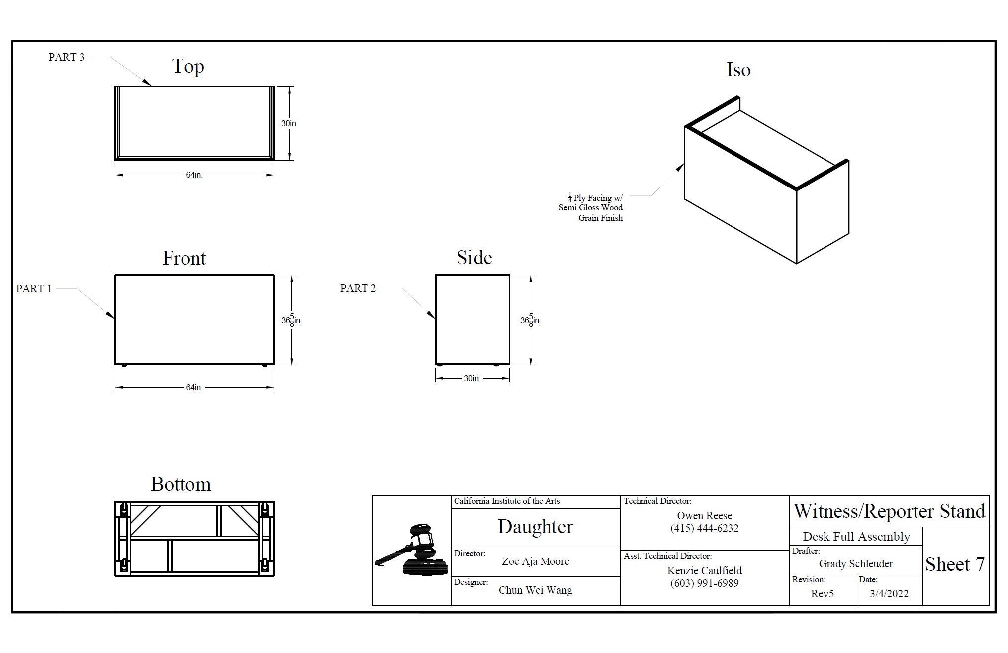
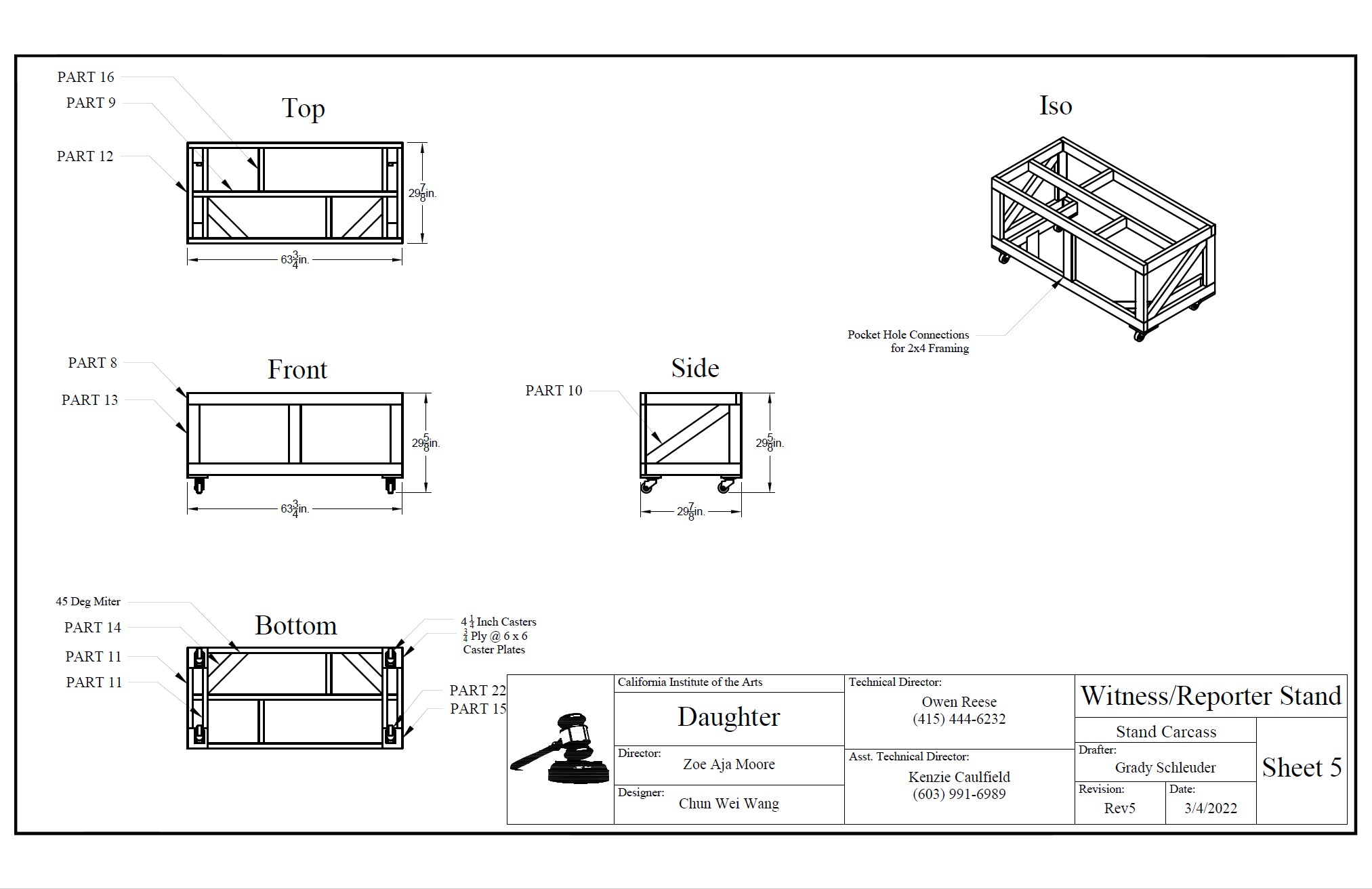
WITNESS STAND & REPORTER DESK


Designed for California Insitute of the Arts production of DAUGHTER in 2022



︎