︎
︎
VECTORWORKS DRAFTING
Table of Contents
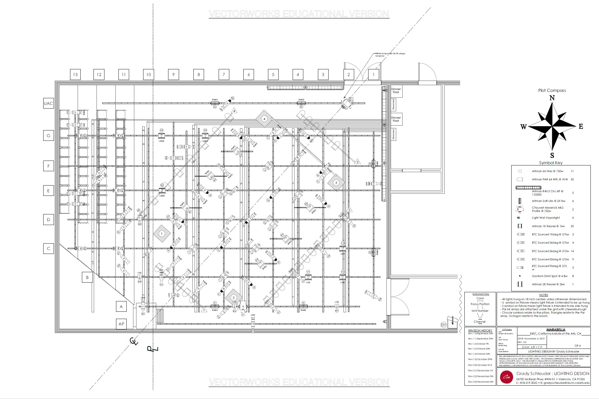
Marabella
Waiting for Godot
Blasted